カテゴリ: おすすめ
伊豆急線城ケ崎海岸駅から約400mの立地。
高台角地に建つゆとりある和風邸宅からは正面に伊豆大島を望みます。
お住まいにも最適な不動産。
・クリニック約750m ・東急ストア約900m ・カインズホーム約1000m
・海洋公園蓮着寺約1200m
|
|
|
|
|
|
伊豆熱川駅から約2.3キロ
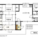
約300坪ある敷地は畑や四季折々の果樹が多く、趣ある手造り茶屋では初夏に蛍が楽しめます。
2DKとロフト付の戸建ては綺麗に使用されており、田舎暮らしにおすすめな不動産です。
・熱川YOU湯ビーチ約2700m ・熱川温泉病院約4100m ・スーパー約1800m
|
|
|
|
|
|
伊豆一碧湖の南に位置する管理の行き届いたイトーピア一碧湖畔別荘地にある
リフォーム中の平屋建。
程よい高台でガーデニングやペットと遊べる土地に建つ2LDKの平屋建
伊豆の山並みから遠目に海・大室山・富士山も望めるロケーションは希少です。
南側隣接地556㎡(東南角地)も販売中。
外装塗装、壁紙張り替え・キッチン入れ替え・畳表替え等
・伊豆一碧湖約1000m・バス停400m・スーパークリニック約3200m
|
|
|
|
|
|
平坦地に建つおしゃれな戸建て、2階から海望み
閑静な住宅街でお住まいに最適。駐車2台可。
2026年1月キッチン新設。
バス停350m、ミニストップ450m
|
|
|
|
|
|
|
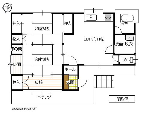
伊豆高原の北側に位置するイトーピア一碧湖畔別荘地。
日当りよくリフォームされた建物は即ご使用可能です。
お庭ではガーデニングも楽しめ、一碧湖まで1100m。
リフォーム化箇所:キッチン・洗面台・浴室・畳・一部床・外装塗装等。
・バス停約700m・スーパークリニック約3500m
|
|
|
|
|
|
伊豆高原桜並木から近く、生活便利で緑豊かな環境、近隣には食事処やカフェがあります。
クリニック750m、スーパー750m、小学校1200m
|
|
|
|
|


価格
築年月












