クリニック近く日当たり良い戸建て
人気の大室高原8丁目エリアに位置する 不動産です。
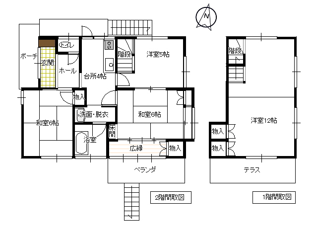
平坦な土地に建つ南向きの建物は2階建。
リフォーム歴もありますが、1階の床等修繕が必要です。
菜園やガーデニングもおすすめな物件です。
・バス停クリニック約400m・マックスバリュ約3400m・カインズホーム約2900m
| 850万円 |
中古戸建
4K 79.48m² (区画面積:412m²) |
|
||
|
||
|
|
|
|
|
|
|
|
|
|
|
|
|
|
|
|
||
|
|
|
|
||
|
|
|
|
|
|
|
|
|
|
|
|
|
|
|
|
|
|
|
|
|
|
|
|
|
|
|
|
||
|
||
|
||
|
||
自然公園法第3種特別地域、宅地造成及び盛り土等規制法、建築基準法第22条、景観法、県建築基準条例、屋外広告物特別規制地域、自治会・分譲地規約.。
※物件掲載内容と現況に相違がある場合は現況を優先と致します。















